必一运动

甘肃必一运动药业股份有限公司的网站标识

网站内页装饰�
News Focus
必一运动 动态
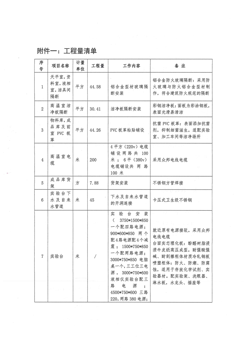
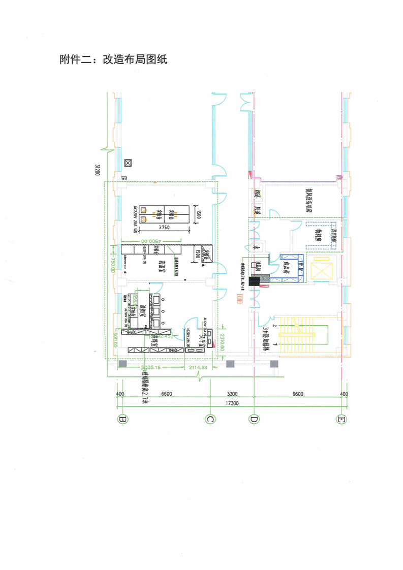
甘肃必一运动药业股份有限公司办公室二层中试实验室局部改造询比价公告
日期:2026-01-07
来源:
浏览次数:
分享:

在线商城

陇神京东元胡止痛滴丸

陇神京东元胡止痛滴丸

百利青禾店

百利青禾店

普安康宣肺止嗽合剂

普安康宣肺止嗽合剂

抖音商城

抖音

抖音

var _hmt = _hmt || []; (function() { var hm = document.createElement("script"); hm.src = "https://hm.baidu.com/hm.js?25a8b6ddd6dc7b9a90aeb1f51e218aa6"; var s = document.getElementsByTagName("script")[0]; s.parentNode.insertBefore(hm, s); })(); 星空xk·(中国)体育官方网站 巅峰国际官网-巅峰国际app下载,你我一起成长 意昂4_意昂4平台_意昂体育4注册 -「官方直营招商注册入口」 泛亚电竞app官网入口(综合)官方网站 IOS/安卓/手机APP HOME-富联娱乐「保障平台,省心注册」 - pgfl